Terreno edificabile in vendita a Misinto
Misinto
Zona: - Via per Rovellasca
€ 150.000
#534 mq
Cod. 4806

Terreno edificabile in vendita a Misinto

- Via per Rovellasca

  • icon

    534

    mq
  • icon

    0

    Camere
  • icon

    0

    Bagni

€ 150.000

Classe energetica: Non specificato

Descrizione

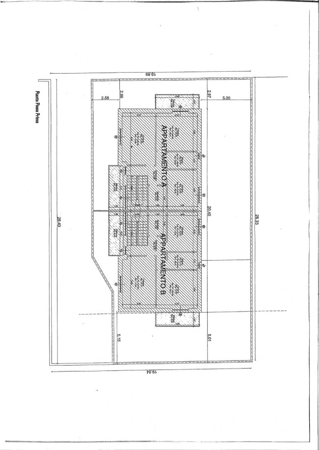
Terreno edificabile con Progetto Approvato Misinto (MB)
Attualmente autorizzato per la realizzazione di una Villa Bifamiliare
In posizione tranquilla e residenziale, proponiamo in Vendita Terreno edificabile di 534 mq con volumetria disponibile di 529 mc, perfetto per chi desidera costruire la casa dei propri sogni o una soluzione bifamiliare moderna e funzionale.
Il progetto già approvato prevede la realizzazione di una Villa Bifamiliare, composta da due appartamenti indipendenti, entrambi con ampia metratura e spazi ben distribuiti:
Composizione di ciascuna unità:
Piano Terra: ingresso su luminoso soggiorno con cucina a vista in ambiente unico e accogliente, bagno e accesso diretto al giardino privato.
Piano Primo: tre camere da letto, bagno e ripostiglio.
Box doppio di pertinenza per ciascuna unità.
Dati tecnici:
Superficie terreno: 534 mq
Volume edificabile: 529 mc
Oneri comunali già saldati
Parziale pagamento professionisti
Un'ottima opportunità per privati o imprese edili che desiderano investire in una soluzione residenziale di qualità, personalizzabile nelle finiture e nelle suddivisioni interne in base alle proprie esigenze.
Posizione: Misinto (MB) in zona tranquilla, immersa nel verde ma comoda con tutti i principali servizi, scuole e collegamenti.
Contattaci subito per maggiori informazioni o per fissare una visita diretta al terreno. Saremo lieti di organizzare un appuntamento nel più breve tempo possibile e fornirti tutti i dettagli tecnici del progetto.

Caratteristiche

Scopri le caratteristiche di questo immobile

  • Terreno edificabile in vendita a Misinto
  • Terreno edificabile in vendita a Misinto
  • Terreno edificabile in vendita a Misinto
  • Terreno edificabile in vendita a Misinto
  • Terreno edificabile in vendita a Misinto
  • Terreno edificabile in vendita a Misinto
  • Terreno edificabile in vendita a Misinto
  • Terreno edificabile in vendita a Misinto
  • Terreno edificabile in vendita a Misinto
  • Terreno edificabile in vendita a Misinto
  • Terreno edificabile in vendita a Misinto
  • Terreno edificabile in vendita a Misinto
  • Terreno edificabile in vendita a Misinto
  • Terreno edificabile in vendita a Misinto
  • Terreno edificabile in vendita a Misinto
  • Terreno edificabile in vendita a Misinto
  • Terreno edificabile in vendita a Misinto
  • Terreno edificabile in vendita a Misinto
mostra di piùmostra di meno

Ubicazione immobile

Contattaci


Ultimo aggiornamento 26/01/2026

Copyright © 2026 Edilproposte Real Estate S.r.l. - Powered by Gestim

×
Codice
Contratto
Scegli dove cercare
Tipologia - multiscelta
Prezzo


Totale mq


Locali minimi
Bagni minimi
Camere minime
Altre opzioni - multiscelta